發布時間:2020-03-23 瀏覽量:2424
一、產品簡介:
振動給料機廣泛應用于礦山、冶金、煤炭、輕工、化工、電力、機械、糧食等各行業中,用于把塊狀、顆粒狀及粉狀物料從貯料倉或漏斗中均勻連續或定量地給到受料裝置中去。
例如,向帶式輸送機、斗式提升機、篩分設備等給料;向破碎機、粉碎機等喂料,以及用于自動配料,定量包裝等,并可以用于自動控制的流程中,實現生產流程的自動化。
二、產品分類:
1、體積小、重量輕、結構簡單、安裝方便、維修少、費用低;
2、通用型,為敞開式、用于無特殊要求的一般給料用;
3、密封型(F),為矩形封閉型結構,適用于粉塵較大的情況給料用;
4、管型(G),給料槽為管型,適用于易碎顆粒,污染較大且具有揮發性物料給料用;
5、調速型(T),適用于自動配稱情況下給料用。
三、產品特點:
1、在使用過程中,可以調節電機轉速或激振力,可隨時改變和控制給料量。
2、調節方便、流量穩定,機身可水平或傾斜—10度安裝。
3、停止運轉時即關閉料倉,給料量有較高的配稱精度。
4、振動電機為激振源,噪音低、耗電小、調節性能好、無沖料現象。
5、電機振動給料機結構簡單、運行可靠、調節安裝方便、重量輕、體積小、維護保養方便。
6、采用封閉式結構,機身可防止粉塵污染。
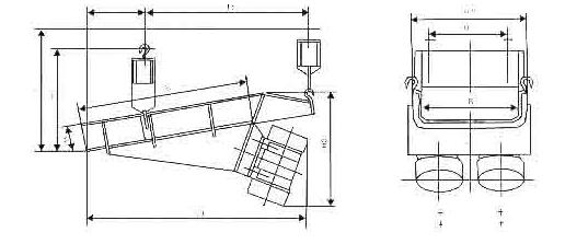
四、安裝示意圖:

新鄉市宏達振動設備有限責任公司是一家**從事振動電機、振動平臺、倉壁振動器、振動脫水篩、振動給料機生產、開發的優秀企業。公司承諾:生產的振動電機100%純銅線,真空浸漆,B/F級絕緣樹脂!
咨詢電話:0373-2632812 13598605042 13462312413